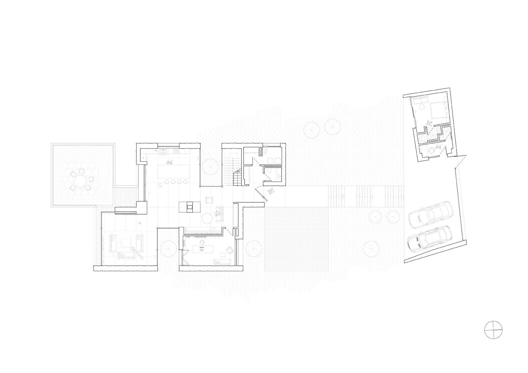
House 06
Garni | Armenia | 2023 | 470.00sqm

Under Construction

Housing

Credits | Karen Berberyan | Armen Hakobyan | Yulia Hovsepyan | Milena Kerobian |